Μελέτες

Μελέτες

Το Νέο Σχολείο

Το Νέο Σχολείο

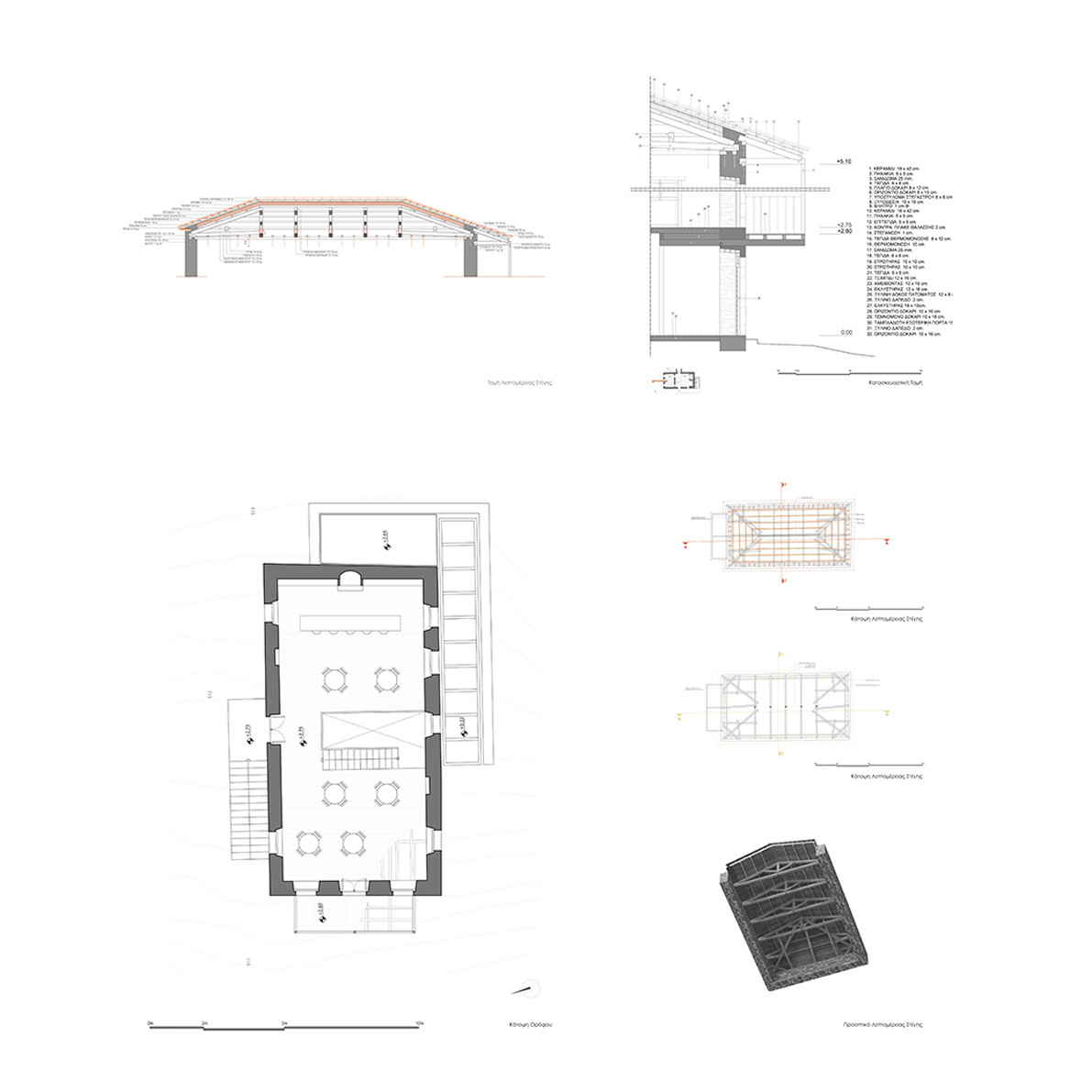
Το νέο σχολείο του Ρωμυρίου χτίστηκε τη δεκαετία του 1950, ακολουθώντας τα πρότυπα του ΟΣΚ, όπως συνέβαινε σε πολλούς μικρούς ορεινούς οικισμούς. Το δίχωρο κτίριο, με λιθοδομή, ξύλινη τετράριχτη στέγη και μωσαϊκό δάπεδο, αποτέλεσε για δεκαετίες βασικό δημόσιο χώρο του χωριού.

Η αρχιτεκτονική πρόταση προβλέπει δύο φάσεις επανάχρησης: αρχικά, το σχολείο μετατρέπεται σε ξενώνα 8–10 ατόμων, εξυπηρετώντας την ανάγκη φιλοξενίας επισκεπτών. Στο μέλλον, σχεδιάζεται η μετατροπή του σε μουσείο που θα αφηγείται την ιστορία του Ρωμυρίου και άλλων αγροτικών οικισμών, από την προνεωτερική εποχή έως σήμερα.

Οι παρεμβάσεις είναι ήπιες: αποκαθίσταται η αρχική μορφή της στέγης και των κουφωμάτων, αφαιρούνται οι αλλοιώσεις των τελευταίων δεκαετιών και επανέρχονται υλικά και χρώματα που συνδέονται με την αρχιτεκτονική ταυτότητα του τόπου. Το νέο σχολείο αποκτά έτσι διπλό ρόλο –ως χώρος φιλοξενίας και χώρος πολιτιστικής μνήμης.